Mirna
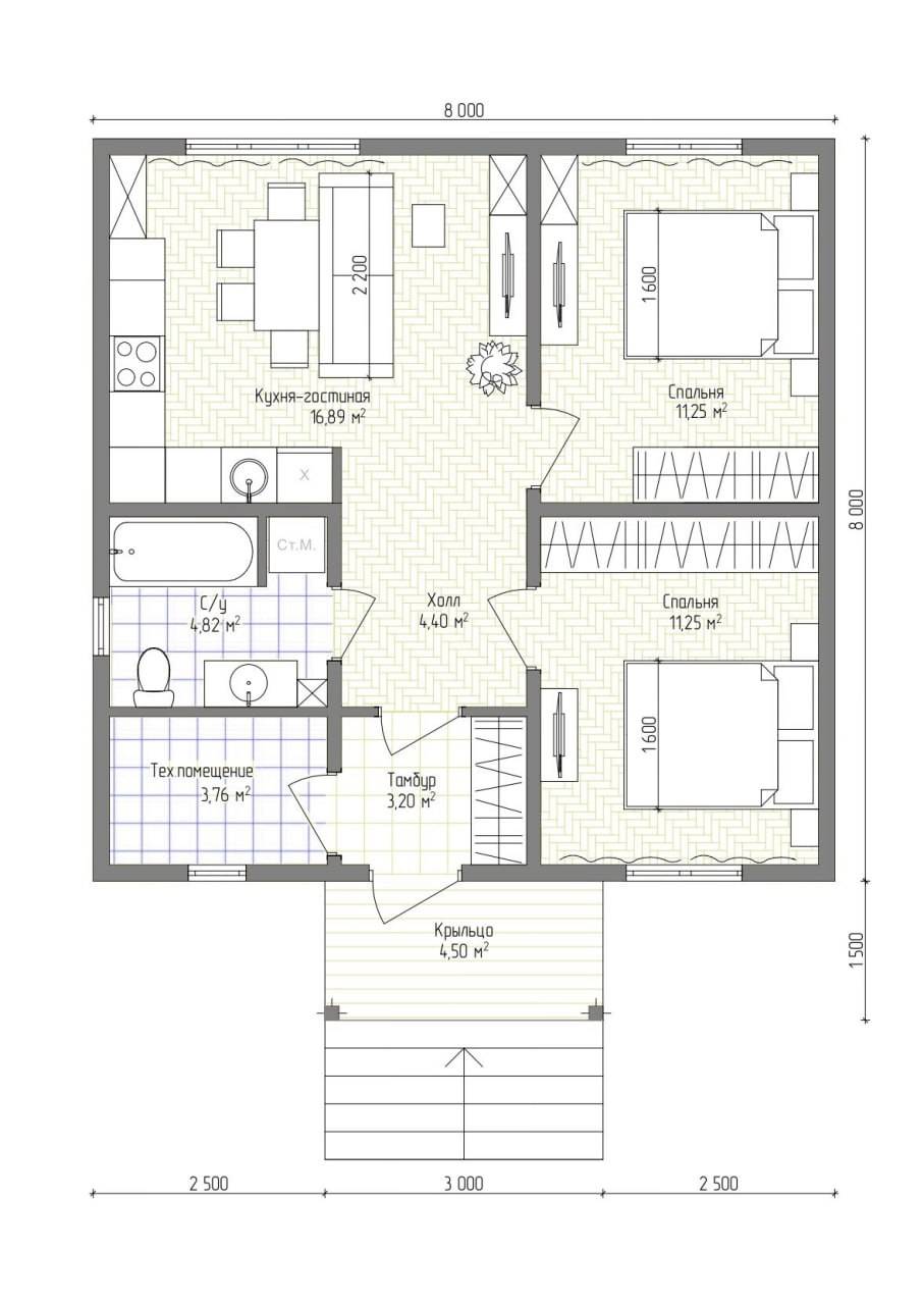
„Mirna“ je funkcionalna jednospratna kuća sa jasno zoniranim prostorom, idealna za udoban život tokom cele godine.
Dve spavaće sobe pružaju privatnost svakom članu porodice, a prostrana dnevna soba ujedinjuje sve u jednom udobnom i svetlom prostoru. Kompaktan raspored je osmišljen do najsitnijih detalja – kuća ima sve što vam je potrebno za život bez viška.
| Površina kuće | 68 m² |
| Dimenzije | 8 х 8 m |
| Konstrukcija uključuje: | |
| SIP paneli debljine 164 mm | za spoljne zidove |
| SIP paneli debljine 124 mm | za unutrašnje pregrade |
| SIP paneli debljine 224 mm | za krov |
Komplet za kuću
„Uradi sam +“
14679 €
- Gotov komplet za samostalnu montažu kuće.
- Mi sečemo SIP panele tačno prema vašem projektu, obezbeđujemo svu potrebnu drvenu građu, pričvršćivače i montažnu penu.
- Drvenu građu sečete sami prema detaljnom dijagramu.
- U kompletu dobijate i detaljna uputstva za korak-po-korak montažu kuće sopstvenim rukama.
Odlična opcija za one koji žele sami da izgrade kuću, bez složenih proračuna i traženja materijala.
„Uradi sam Premium“
15990 €
- Potpuno pripremljen komplet za brzu i jednostavnu montažu.
- Svi SIP paneli su unapred isečeni prema projektu i opremljeni ugrađenom drvenom konstrukcijom direktno u našem proizvodnom pogonu.
- Svi elementi se uklapaju sa velikom preciznošću, što omogućava da se ručne greške svedu na minimum i značajno pojednostavi montaža na terenu.
- Komplet sadrži sve što je potrebno: panele, drvenu građu, pričvršćivače, montažnu penu i detaljna tehnička uputstva i crteže.
Za koga je namenjeno: za one koji žele da ubrzaju montažu i svedu ručni rad na minimum.










