Mirna Luka
„Mirna Luka“ – jednostavna i udobna kuća, stvorena za opuštanje i mirne trenutke. Njen skladan oblik i praktičan raspored pružaju osećaj sigurnosti i topline. Veliki prozori unose dovoljno svetlosti i povezuju dom sa prirodom, stvarajući prijatan ambijent tokom cele godine.
„Mirna Luka“ je mesto gde se dan završava spokojem, a svaki povratak kući donosi osećaj mira.
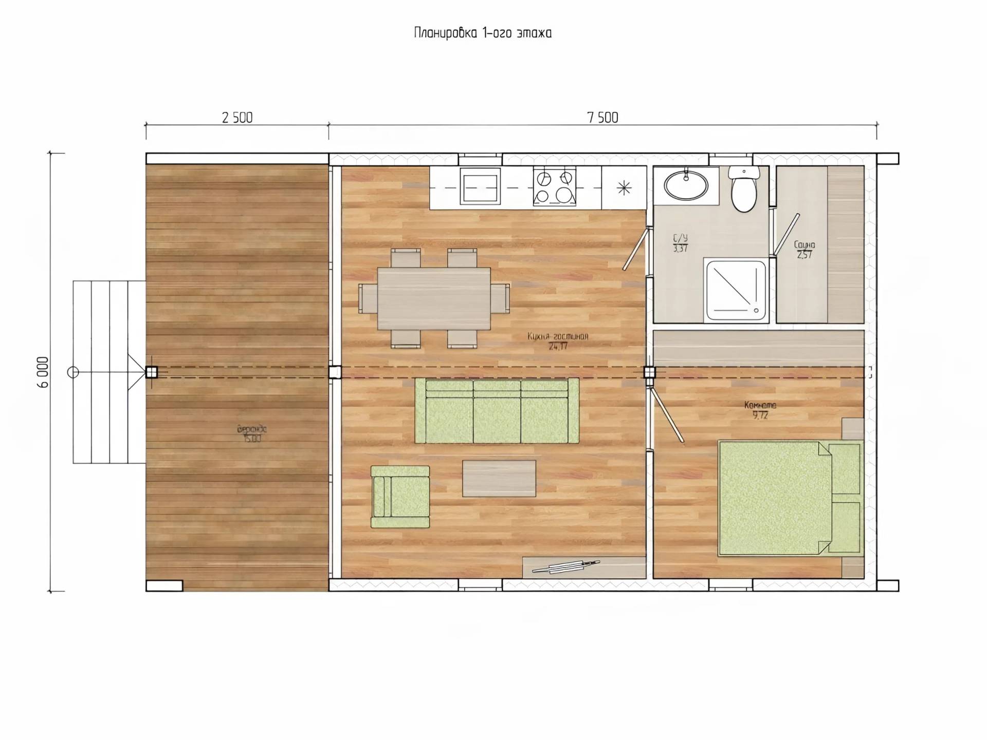
| Površina kuće | 60 m² |
| Dimenzije | 10 х 6 m |
| Konstrukcija uključuje: | |
| SIP paneli debljine 164 mm | za spoljne zidove |
| SIP paneli debljine 124 mm | za unutrašnje pregrade |
| SIP paneli debljine 224 mm | za krov |
Komplet za kuću
„Uradi sam +“
12512 €
- Gotov komplet za samostalnu montažu kuće.
- Mi sečemo SIP panele tačno prema vašem projektu, obezbeđujemo svu potrebnu drvenu građu, pričvršćivače i montažnu penu.
- Drvenu građu sečete sami prema detaljnom dijagramu.
- U kompletu dobijate i detaljna uputstva za korak-po-korak montažu kuće sopstvenim rukama.
Odlična opcija za one koji žele sami da izgrade kuću, bez složenih proračuna i traženja materijala.
„Uradi sam Premium“
14052 €
- Potpuno pripremljen komplet za brzu i jednostavnu montažu.
- Svi SIP paneli su unapred isečeni prema projektu i opremljeni ugrađenom drvenom konstrukcijom direktno u našem proizvodnom pogonu.
- Svi elementi se uklapaju sa velikom preciznošću, što omogućava da se ručne greške svedu na minimum i značajno pojednostavi montaža na terenu.
- Komplet sadrži sve što je potrebno: panele, drvenu građu, pričvršćivače, montažnu penu i detaljna tehnička uputstva i crteže.
Za koga je namenjeno: za one koji žele da ubrzaju montažu i svedu ručni rad na minimum.












